The Reeve's Tale's old website

Bylaugh Hall -by Roger Fryatt
There are at least two folk
stories about this building. One is that the estate was originally acquired
from Richard Lloyd by the Lombe Family
( subsequently known as Evans-Lombe) as the result of a card game, when the
Lloyd's butler drugged his master's wine. The other is that when the Hall was
originally built it had a curse put on it by the Lloyd's nursemaid to the
effect that it would only stand for one hundred years. Whatever the truths
involved in these tales, it is certainly the case that within one hundred years
of its construction it was , as Sir Niclaus Pevsner described it, "a
conspicuous ruin".
Sir John Lombe died in 1817, and left money to be held in trust with the instruction that a mansion be built on the highest part of the estate. Towards the middle of the century, nothing had been done, and so the Court of Chancery instructed the family to get on with it!
The house was built by Charles Barry jnr. (son of
Sir Charles of Houses of Parliament fame) and R.Banks, and is reputed to be one
of the first steel framed buildings in
|
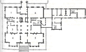
_____________________________ 30m Bylaugh Hall. Plan |
1.
Billiard room |
By 1883, at 13,343 acres, the Estate was the
fourth largest in Norfolk (Holkham with 44,090 acres, Raynham with 18,343 acres
and Houghton with 16,995 acres) , but like other landowners at the time, was suffering
from the effects of the Agricultural Depression that began about 1875. The
Evans-Lombe family finally sold up in 1917,
when the house was acquired by the Marsh Family from
During the last war, the house was requisitioned by the R.A.F., and subsequent to its de-requisitioning was sold to a builder who sold the interior fittings and the lead from the roof in about 1950 - just one hundred years after its construction.
From January 1944 until December
1945, the Hall was the headquarters for No.100
(Special Duties) Group, Royal Air Force. Because of the removal of the roof
by the builders, the house was a ruin for fifty years. In the year 2000 it was
purchased by local sculptor Steven Vince who raised the money to preserve what
remained of this interesting building, and for a while it was popular as a
wedding venue and location for concerts
and Latin American dance. Ed
Auctioneer's Particulars of the house and
Estate in
1917
The little